pt

en

POÉTICAS DIGITAIS

GRUPO

RECENTES

PROJETOS

LINKS

CONTATO

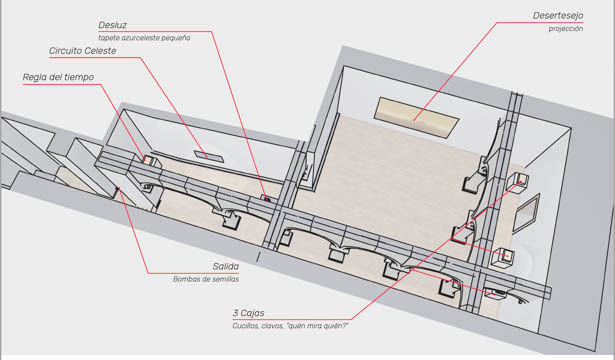
Circuito celeste/Régua do tempo

Colar-sensor

Biombo – aqueduto

Caixas de Choque 1, 2, 3

Caixa dos horizontes possíveis

Mirante 50

Ø25 - Quarto Lago

ZN:PRDM

Encontros

Catavento

Amoreiras

Desluz

Pedralumen

Cozinheiro das Almas

Acaso 30

Incógnito

Arte Alameda - 2018

BIENALSUR - 2017

Bioma Digital - 2016

Bienal WRO Polônia - 2015

 19

 20

 21

 22

 23

 24

 25

 26

 26

 27

 28

 29

 30

 31

 32

 33

 34

 35

 36

 37

 38

 39

 40

 32

 33

 34

 35

 36

 37

 38

 39

>

  • Arte Alameda - 2018

     

    Exposição individual de Gilbertto Prado e do Grupo Poéticas Digitais realizada no Laboratório Arte Alameda, México de 5 de junho a 5 de agosto de 2018. A mostra Circuito Alameda consta de novas obras site specific criadas para o LAA (antigo convento de San Diego, sec. XVI) em diálogo com outros trabalhos pessoais do artista e com o Grupo, num total de 17 obras em 5 salas distintas que vinculam a relação arte, tecnologia e natureza. A idéia foi a de estabelecer diversos circuitos com/entre os visitantes, a Praça Central Alameda, frutos e plantas in natura (milho, pimenta e laranja), os processos de hibridização, colonização e os choques culturais. A exposição teve a curadoria de Jorge La Ferla.

     

    HOT SITE EM CONSTRUÇÃO